Doppelhaushälfte in zentraler Lage von Wardenburg! Schlüsselfertig inkl. Gartenanlage & Carport
26203 Wardenburg, Doppelhaushälfte zum Kauf
Kontaktdaten
-
NameHerr Kai Claussen
-
AnschriftBahnhofstraße 14
27798 Hude -
E-Mail
-
Telefon
Objektdaten
-
Objekt-ID8025-8004
-
ObjekttypenDoppelhaushälfte, Haus
-
AdresseLitteler Straße 8a
26203 Wardenburg -
Etagen im Haus2
-
Wohnfläche ca.116 m²
-
Grundstück ca.285 m²
-
Zimmer4
-
Schlafzimmer3
-
Badezimmer1
-
Wesentlicher EnergieträgerStrom
-
Baujahr2025
-
ZustandErstbezug
-
Stellplätze gesamt1
-
Käuferprovision1,785 % inkl. 19 % Steuer inkl. MwSt.
-
Kaufpreis475.000 EUR
Ausstattung / Merkmale
- ✓ Carport
- ✓ Gäste-WC
Energieausweis
-
EnergieausweistypBedarfsausweis
-
Ausstellungsdatumnach dem 1.5.2014
-
Baujahr lt. Energieausweis2025
-
PrimärenergieträgerStrom
-
Endenergiebedarf31,00 kWh/(m²·a)
-
EnergieeffizienzklasseA
Objektbeschreibung
Beschreibung
SCHLÜSSELFERTIG – Einziehen und Wohlfühlen.
Zum Verkauf steht eine von insgesamt vier hochwertigen Doppelhaushälften in attraktiver, zentraler Lage von Wardenburg. Die Immobilie zeichnet sich durch eine solide Massivbauweise, eine moderne Ausstattung und einen durchdachten Grundriss aus.
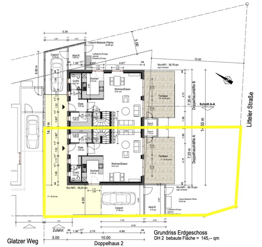
Die Wohnfläche beträgt ca. 116 m² und verteilt sich wie folgt:
ERDGESCHOSS:
- Wohn- und Essbereich mit Zugang zur Terrasse
- Flur
- Gäste-WC
- Hauswirtschaftsraum
OBERGESCHOSS:
- drei Schlafzimmer
- Tageslichtbad mit Dusche und Badewanne
- Flur
Ausreichend Abstellfläche bietet der Dachboden.
Der beigefügte Grundriss hilft Ihnen dabei einen Eindruck von der Aufteilung zu bekommen.
AUßENBEREICH:
- Carport mit angrenzendem Geräteraum
- Terrasse mit angrenzendem, kleinen Abstellraum
- fertig angelegte Rasenfläche und Hecke
Kontaktieren Sie uns für weitere Informationen wie zum Bespiel eine detaillierte Baubeschreibung.
Wir freuen uns auf Ihre Anfrage!
Ausstattung
- Neubau, Erstbezug
- ca. 116 m² Wohnfläche
- 285 m² Grundstück
- schlüsselfertig (ohne Einbauküche)
- Luft-Wasser-Wärmepumpe
- Fußbodenheizung
- Außenjalousien
- gepflasterte Terrasse (ca. 18 m²)
- angelegte Rasenfläche
- Hecke als Grundstücksgrenze
- Carport mit Geräteraum
- Fertigstellung ca. März/April 2026
- Auf die Auswahl von Bodenbelägen und Wandgestaltung kann derzeit NOCH Rücksicht genommen werden
Sonstiges
Kontaktieren Sie uns für weitere Informationen und ein unverbindliches Beratungsgespräch!
Die Angaben des Angebotes werden uns von Eigentümern oder Dritten geliefert. Trotz der von uns aufgewandten Sorgfalt können wir für die Richtigkeit und Vollständigkeit des Angebotes keine Haftung übernehmen. Das Angebot erfolgt freibleibend; Zwischenverkauf bleibt vorbehalten.
Lage
Die Doppelhaushälfte befindet sich in zentraler und dennoch ruhiger Lage von Wardenburg. Das Wohngebiet ist geprägt von gepflegten Einfamilien- und Doppelhäusern mit ansprechender Nachbarschaft, die besonders bei Familien und Berufspendlern sehr gefragt ist.
Die Gemeinde Wardenburg liegt im südwestlichen Teil des Landkreises Oldenburg und überzeugt durch ihre hervorragende Infrastruktur sowie die unmittelbare Nähe zur Stadt Oldenburg (nur ca. 10 Fahrminuten entfernt). Einkaufsmöglichkeiten für den täglichen Bedarf, Bäcker, Apotheken, Ärzte sowie Kindergärten und Schulen befinden sich in direkter Umgebung und sind bequem zu Fuß oder mit dem Fahrrad erreichbar.
Die Verkehrsanbindung ist ausgezeichnet: Über die Autobahn A29 (Anschlussstelle Wardenburg) sowie die Bundesstraße B 213 ist Oldenburg, Cloppenburg und die gesamte Region schnell erreichbar. Zudem bestehen gute Busverbindungen in Richtung Oldenburg und die umliegenden Ortsteile.
Insgesamt bietet die Lage eine ideale Kombination aus ländlicher Ruhe und urbaner Nähe – perfekt für alle, die komfortables Wohnen in einer naturnahen Umgebung mit guter Anbindung schätzen.






