Penthouse! Traumhaft Wohnen am Schützenplatz!
27798 Hude, Penthousewohnung zum Kauf
Kontaktdaten
-
NameHerr Kai Claussen
-
AnschriftBahnhofstraße 14
27798 Hude -
E-Mail
-
Telefon
Objektdaten
-
Objekt-ID5024-0010
-
ObjekttypenPenthousewohnung, Wohnung
-
AdresseHohelucht 1a
27798 Hude
(Hude (Oldenburg)) -
Etage3
-
Etagen im Haus3
-
Wohnfläche ca.131,15 m²
-
Zimmer3
-
Schlafzimmer2
-
Badezimmer1
-
Wesentlicher EnergieträgerStrom
-
Baujahr2025
-
ZustandErstbezug
-
Ausstattunggehoben
-
Stellplätze gesamt1
-
Kaufpreis524.600 EUR
Ausstattung / Merkmale
- ✓ Außenstellplatz
- ✓ Balkon/Terrasse
- ✓ Barrierefrei
- ✓ Personenaufzug
Energieausweis
-
EnergieausweistypBedarfsausweis
-
Ausstellungsdatumnach dem 1.5.2014
-
Baujahr lt. Energieausweis2024
-
PrimärenergieträgerStrom
-
Endenergiebedarf16,60 kWh/(m²·a)
-
EnergieeffizienzklasseA+
Objektbeschreibung
Beschreibung
Zum Verkauf angeboten wird die letzte verfügbare Wohnung des Neubauprojektes „Wohnen am Schützenplatz“. Hierbei handelt es sich um eine Penthouse-Wohnung im Dachgeschoss eines 5-Parteien-Hauses.
Dieses außergewöhnliche Penthouse vereint modernen Wohnkomfort, energieeffiziente Bauweise und exklusive Ausstattung in perfekter Harmonie. Das im KfW-40-Standard errichtete Neubauobjekt bietet nicht nur höchste Energieeffizienz, sondern auch zeitlose Architektur und ein durchdachtes Raumkonzept.
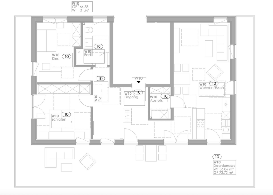
Auf einer großzügigen Wohnfläche von ca. 131 m² erstreckt sich eine helle, offene Wohnlandschaft, die höchsten Ansprüchen gerecht wird. Mit dem Aufzug gelangen Sie bequem direkt ins Dachgeschoss – hier erwartet Sie Ihr neues Zuhause mit beeindruckendem Ambiente.
Der beigefügte Grundriss hilft Ihnen dabei einen ersten Eindruck von der Aufteilung zu bekommen.
Viele weitere und ausführliche Informationen finden Sie auf der Projekthomepage:
http://www.amschuetzenplatz.de
Wir freuen uns auf Ihre Anfrage.
Ausstattung
- Zentrale Lage in Hude
- Energieeffizienter Neubau gemäß KfW-40-Standard
- Großer, offener Wohn- und Essbereich mit bodentiefen Fenstern und Zugang zur Dachterrasse
- Schlafzimmer mit angrenzendem Badezimmer
- Büro / Gästezimmer – ideal für Homeoffice oder flexible Nutzung
- Separater Abstellraum innerhalb der Wohnung
- Große Dachterrasse – perfekt für entspannte Stunden im Freien
- Moderne Ausstattung
- Hochwertige Baumaterialien
- Fahrstuhl
- PKW-Stellplatz direkt vor dem Haus
Sonstiges
Kontaktieren Sie uns für weitere Informationen.
Lage
Hude bietet ein breites Angebot an Bildungs- und Freizeitmöglichkeiten, darunter Schulen, Kindergärten und Sportvereine.
Auch die Infrastruktur in Hude lässt keine Wünsche offen. Einkaufsmöglichkeiten, Ärzte, Apotheken und weitere Dienstleistungen sind bequem zu Fuß oder mit dem Fahrrad erreichbar.
Die hervorragende Verkehrsanbindung ermöglicht zudem eine sehr gute Erreichbarkeit der umliegenden Städte wie Oldenburg und Bremen.
Der Ort Hude liegt eingebettet in einer atemberaubenden Landschaft aus Wiesen, Wäldern und Flüssen. Mit einer Fülle von Wander- und Radwegen sowie zahlreichen Grünflächen bietet Hude endlose Möglichkeiten für Outdoor-Aktivitäten und Erholung.











